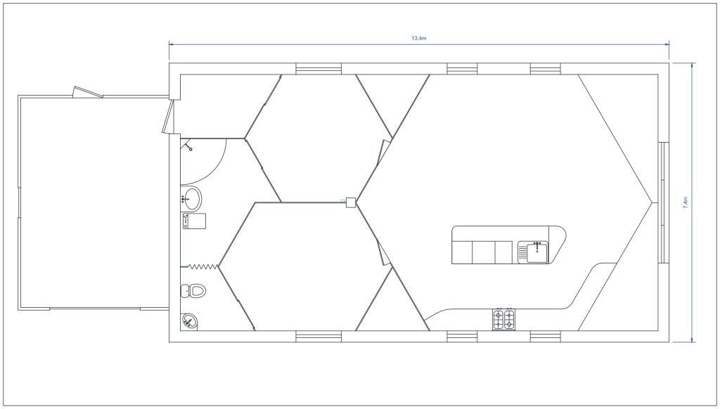
I wanted to make a house with at least the main room in the shape of a hexagon and a faceted ceiling, to get a feel of the effect. I met someone who wanted a house that wasn’t cubic (on the inside), with storage areas built into the walls, to reduce the amount of furniture and create a very Zen space. As the building plot was located near a classified site, the exterior shape had to be similar to that of a Quercy house.
Three hexagonal rooms were nested inside a rectangle, with the remaining triangles serving as storage areas – perfect!
The result: the hexagon is very pleasant to live in! It feels softer and freer (as with the round), and the pleasant surprise is that a 16 m2 hexagonal bedroom feels bigger than a rectangular one of the same size.




